Portofolio Proyek: Desain & Renovasi Rumah Tinggal JS
Gambaran Umum
Proyek Desain & Bangun Rumah Tinggal JS Tebet merupakan pekerjaan renovasi total dan pengembangan struktur eksisting rumah tinggal 2 lantai menjadi bangunan yang siap dikembangkan hingga 3 lantai. Lingkup pekerjaan mencakup pembongkaran sebagian struktur, penambahan pondasi baru, perkuatan kolom dan elemen struktur, hingga penyesuaian desain arsitektur modern.
Bangunan lama dilakukan transformasi menyeluruh dengan pendekatan design & build, di mana aspek arsitektur dan rekayasa struktur direncanakan secara terintegrasi untuk memastikan bangunan tidak hanya aman secara teknis, tetapi juga selaras dengan konsep desain baru yang lebih modern dan fungsional.
Informasi Proyek
- Nama Proyek: Rumah Tinggal JS
- Lokasi: Tebet, Jakarta Selatan
- Jenis Bangunan: Rumah Tinggal Eksisting
- Kondisi Awal: Bangunan lama 2 lantai
- Pengembangan: Upgrade struktur menjadi siap 3 lantai
- Layanan: Jasa Desain & Bangun (Renovasi Total + Structural Upgrade)
- Scope Utama: Bongkar sebagian struktur, penambahan pondasi, kolom, dan Balok perkuatan struktur
- Tahun: 2026
Konsep Desain & Pengembangan Arsitektur
Konsep utama proyek ini adalah transformasi bangunan eksisting menjadi rumah tinggal modern yang memiliki kapasitas pengembangan vertikal hingga 3 lantai. Desain arsitektur disesuaikan dengan kebutuhan baru pemilik, dengan pendekatan yang lebih modern, efisien, dan adaptif terhadap sistem struktur baru.
Penyesuaian desain dilakukan secara paralel dengan rekayasa struktur, sehingga setiap perubahan arsitektural tetap mempertimbangkan kapasitas dan kesinambungan elemen struktur bangunan.
Fokus utama konsep desain:
- Redesain layout ruang sesuai kebutuhan baru
- Penyesuaian struktur terhadap rencana pengembangan 3 lantai
- Integrasi desain arsitektur dengan sistem struktur baru
- Optimalisasi pencahayaan, ventilasi, dan fungsi ruang
- Penguatan konsep hunian modern yang lebih efisien
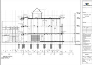
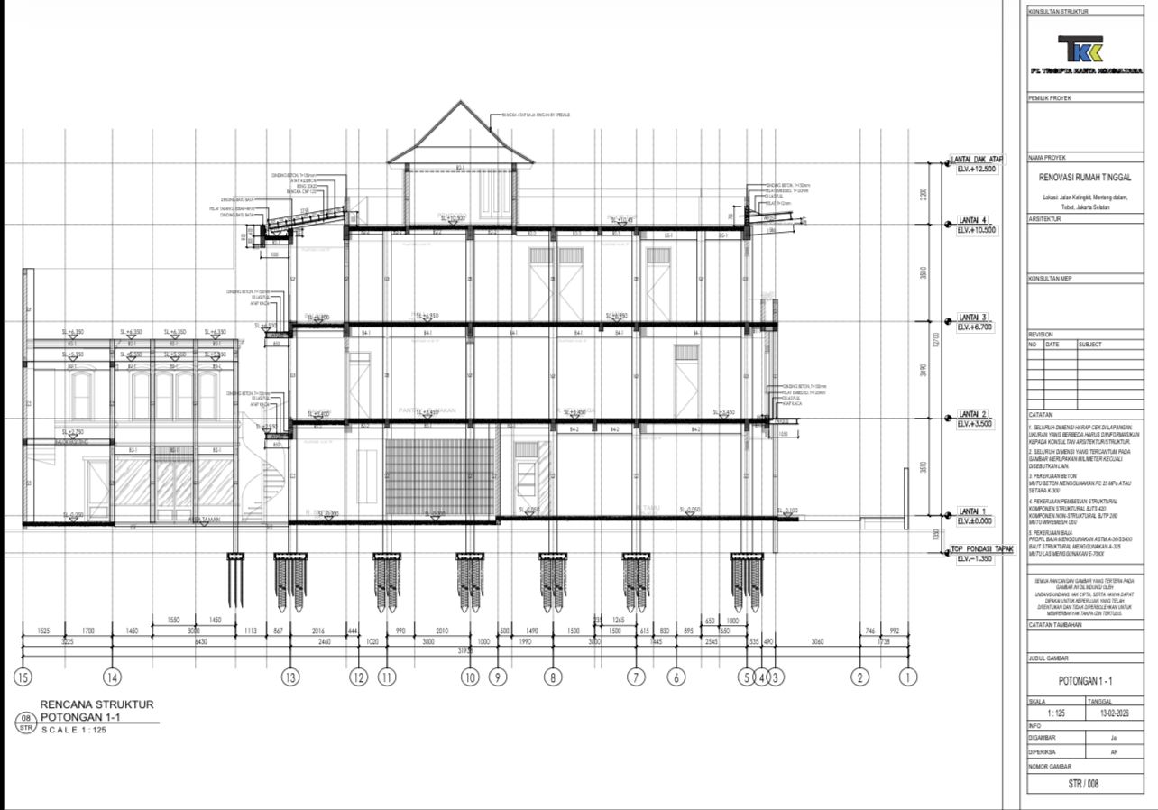
Strategi Struktur & Pekerjaan Teknis
Karena bangunan eksisting awalnya hanya direncanakan 2 lantai, dilakukan intervensi struktur secara menyeluruh untuk meningkatkan kapasitas bangunan menjadi 3 lantai.
Lingkup pekerjaan struktur meliputi:
- Pembongkaran lantai 2 eksisting untuk rekonstruksi sistem struktur baru
- Penambahan pondasi baru untuk mendukung beban tambahan lantai 3
- Penambahan dan perkuatan kolom struktur utama
- Penguatan elemen balok dan sistem rangka bangunan
- Penyesuaian sistem struktur terhadap beban rencana 3 lantai
- Perkuatan struktur atap sesuai desain arsitektur baru
Pendekatan ini dilakukan dengan prinsip structural retrofitting dan capacity upgrade, memastikan bangunan eksisting dapat dikembangkan secara aman tanpa mengorbankan stabilitas jangka panjang.
Dokumentasi Proyek
Dokumentasi proyek mencakup proses transformasi struktural dan arsitektural, antara lain:
- Kondisi awal bangunan 2 lantai eksisting
- Proses pembongkaran lantai 2
- Pekerjaan penambahan pondasi baru
- Instalasi kolom dan elemen struktur tambahan
- Progres rekonstruksi struktur utama
- Implementasi desain arsitektur baru

Lingkup Pekerjaan
Lingkup pekerjaan dalam proyek ini mencakup:
- Structural assessment bangunan eksisting
- Perencanaan arsitektur rumah tinggal modern
- Analisis dan desain pengembangan struktur 3 lantai
- Pembongkaran lantai 2 eksisting
- Pekerjaan pondasi baru (foundation upgrade)
- Penambahan dan perkuatan kolom struktur
- Perkuatan balok dan sistem rangka bangunan
- Pekerjaan arsitektural dan finishing
- Integrasi sistem utilitas bangunan
Seluruh pekerjaan dilaksanakan dengan pendekatan engineering-based design & build untuk memastikan keamanan, presisi, dan kesesuaian dengan rencana pengembangan jangka panjang.
Hasil Akhir Proyek (Outcome)
Hasil akhir dari proyek ini adalah transformasi bangunan eksisting menjadi rumah tinggal yang:
- Memiliki struktur yang siap dikembangkan hingga 3 lantai
- Lebih kuat dan stabil melalui sistem pondasi dan kolom baru
- Mengikuti desain arsitektur modern yang lebih fungsional
- Mengoptimalkan potensi lahan secara vertikal
- Meningkatkan nilai properti secara signifikan
Konsultasi Jasa Renovasi & Struktur Rumah
Kami menyediakan layanan jasa desain dan bangun rumah tinggal, termasuk perkuatan struktur, upgrade bangunan eksisting, serta pengembangan rumah bertingkat.
Jika Anda memiliki rumah lama yang ingin dikembangkan menjadi bangunan yang lebih tinggi, modern, dan aman secara struktur, kami siap membantu mulai dari tahap desain hingga pelaksanaan konstruksi.
Hubungi kami untuk konsultasi GRATIS dan evaluasi struktur bangunan Anda.
📞 WA: 6282218939615
📧 Email: admin@triciptakarya.com
🌐 Website: triciptakarya.com





