
Portofolio: Desain & Bangun Lapangan Padel Imam Bonjol Bali
Portofolio: Desain & Bangun Lapangan Padel Imam Bonjol Bali Gambaran Umum Proyek Proyek Desain & Bangun Lapangan Padel Imam Bonjol Bali merupakan pengembangan fasilitas olahraga
Tricipta Karya Konsultama adalah perusahaan yang berfokus pada layanan jasa kontraktor bangunan Jakarta dan desain untuk rumah, ruko, gudang dan retail. Kami menghadirkan solusi konstruksi dan desain yang inovatif dan terpercaya, memastikan setiap proyek berjalan dengan lancar, tepat waktu, dan sesuai visi klien.
Dengan pengalaman luas dan keahlian mendalam, kami memahami pentingnya menciptakan ruang yang tidak hanya indah, tetapi juga fungsional dan sesuai dengan kebutuhan bisnis atau hunian. Kami telah menangani proyek di area Jakarta Barat, Jakarta Selatan, dan Jakarta Pusat

Portofolio: Desain & Bangun Lapangan Padel Imam Bonjol Bali Gambaran Umum Proyek Proyek Desain & Bangun Lapangan Padel Imam Bonjol Bali merupakan pengembangan fasilitas olahraga

Portofolio: Desain & Bangun Lapangan Padel Meruya Gambaran Umum Proyek Proyek Desain & Bangun Lapangan Padel Meruya merupakan pembangunan fasilitas olahraga profesional untuk cabang olahraga

Portofolio: Desain & Renovasi Ruko Menjadi Rumah Kost Eksklusif Gambaran Umum Proyek Proyek Desain & Renovasi Ruko Menjadi Rumah Kost Eksklusif ini bertujuan mengubah ruko

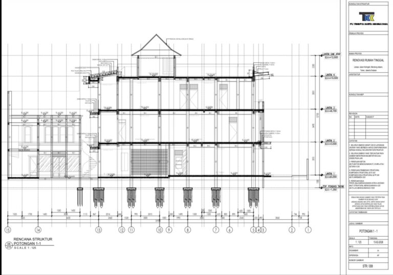
Portofolio: Desain Geoteknik & Struktur Rumah Tinggal Mewah Galuh Gambaran Umum Proyek Proyek Desain Geoteknik & Struktur Rumah Tinggal Mewah Galuh merupakan salah satu proyek

Portofolio: Bangun Rumah Tinggal RN Gambaran Umum Proyek Proyek Bangun Rumah Tinggal RN merupakan pekerjaan konstruksi rumah tinggal yang dilaksanakan berdasarkan desain arsitektur dari LeJ

Portofolio: Desain dan Bangun Penambahan Lantai Mezanin Baja Lobby Thamrin Nine Gambaran Umum Proyek Proyek Penambahan Lantai Mezanin Baja di Lobby Thamrin Nine merupakan pekerjaan
Tricipta Karya Konsultama telah menjadi pilihan utama dalam berbagai proyek jasa kontraktor Jakarta, jasa arsitek rumah Jakarta, dan jasa renovasi rumah Jakarta, jasa konstruksi baja, Jasa desain bangunan.
Kami juga berpengalaman dalam menangani proyek jasa konstruksi baja untuk bangunan komersial, serta menyediakan layanan jasa desain bangunan dari awal hingga proses pembangunan selesai.
Berikut layanan utama Jasa Kontraktor Bangunan Jakarta kami yang bisa Anda pesan :
Dengan pengalaman di dunia konstruksi, Tricipta Karya Konsultama hadir sebagai solusi terbaik untuk semua kebutuhan jasa kontraktor bangunan, renovasi rumah, hingga desain dan pembangunan dari nol.
Ratusan proyek selesai, Rating 5 bintang dari klien, Ahli dalam proyek rumah, ruko, dan bangunan bertingkat
Kami adalah penyedia jasa kontraktor Jakarta yang siap menangani proyek bangunan rumah, renovasi, hingga konstruksi gedung dengan hasil rapi, tepat waktu, dan sesuai anggaran.
Jasa kontraktor jakarta dan desain berkualitas dengan harga terjangkau, sesuai anggaran Anda!
Percayakan proyek Anda kepada tim profesional kami yang siap memberikan hasil terbaik, tepat waktu, dan sesuai standar!
Kami mengutamakan komunikasi yang baik dan transparansi di setiap tahap proyek, memastikan Anda selalu terinformasi dan terlibat!
Konsultasi GRATIS kapan pun Anda butuh! Tim kami siap menjawab pertanyaan seputar jasa renovasi rumah per meter, subsidi, atau desain interior kapan saja.
Ya, kami melayani jasa kontraktor rumah Jakarta dengan layanan lengkap mulai dari desain, perizinan, hingga pembangunan. Didukung tim arsitek dan kontraktor berpengalaman, hasil bangunan dijamin berkualitas.
Tidak. Kami juga menyediakan jasa kontraktor Surabaya, jasa kontraktor Jogja, Tangerang, Bekasi, Bogor, hingga Sukabumi, dengan kualitas layanan yang sama di seluruh wilayah.
Benar. Kami menghadirkan layanan jasa arsitek dan kontraktor rumah dalam satu paket, sehingga proses pembangunan lebih efisien dan desain sesuai dengan kebutuhan fungsional maupun estetika.
Biaya jasa kontraktor bangun rumah menyesuaikan luas bangunan, desain, dan material. Kami juga menyediakan RAB renovasi serta konsultasi gratis sebelum memulai proyek.
Tentu. Kami melayani jasa renovasi rumah Jakarta, termasuk area Tangerang, Bekasi, Bogor, dan BSD. Layanan mencakup renovasi interior, eksterior, dan full bangun.
Ya, kami memiliki tim teknis untuk jasa kontraktor sipil dan juga spesialis jasa konstruksi baja, termasuk WF, baja ringan, dan struktur baja berat dengan harga terbaru tahun 2025–2026.
Kami menyediakan jasa arsitek rumah mewah, modern, hingga minimalis tropis. Portofolio kami mencakup berbagai proyek dengan variasi harga jasa arsitek rumah yang kompetitif.
Ya, kami menyediakan jasa borongan renovasi rumah dan opsi pembayaran fleksibel. Beberapa klien juga menggunakan layanan jasa renovasi rumah bisa dicicil untuk mengatur anggaran.
Kami ahli dalam jasa desain bangunan, termasuk desain rumah minimalis 2 lantai, desain bangunan kantor, desain toko bangunan, dan proyek khusus seperti desain PAUD atau desain rumah sakit.
Tersedia. Layanan jasa desain dan renovasi rumah kami sudah mencakup desain arsitektur, gambar kerja, RAB, hingga pelaksanaan renovasi oleh tukang profesional.
Gratis Konsultasi setiap masalah Anda